Wethouder Jansenlaan 53

3844 DG Harderwijk

Vraagprijs € 695.000,- k.k.
177 m2 wonen
103 m2 perceel
3 slaapkamers
Beschikbaar

Royaal, imposant en uniek.

Op zoek naar een woning waar ruimte, licht en comfort samenkomen? Waar je binnenstapt en direct denkt: hier wil ik wonen? Welkom aan de Wethouder Jansenlaan 53, een prachtig uitgebouwde ‘atelierwoning’ met parkeerplaats, fietsenstalling en multifunctionele ruimten, gelegen op een heerlijke, centrale locatie op loopafstand van het authentieke stadscentrum en het Wolderwijd.

Een woning die anders is.

Dankzij een royale dakopbouw (2017) heeft deze woning een indrukwekkend woonoppervlak van maar liefst 177 m².
Multifunctionele ruimten: wonen, slapen, werken, praktijk, speelkamer en/of gameroom.
Door de speelse indeling, verdeeld over 4 woonlagen en het vigerende bestemmingsplan is deze ‘atelierwoning’ voor meerdere doeleinden geschikt. Werk je vanuit huis? Start je een salon, praktijk of bed & breakfast? Wil je een chill- of gameroom voor de kinderen? Dit huis is klaar voor jouw ideeën. Bedenk ze vast!

De woonkeuken bevindt zich thans op de begane grond en vormt het warme ontmoetingspunt van het huis: een royale, sfeervolle plek met direct contact met de straat. Grote ramen met triple glas en het hoge plafond van ruim 3 meter zorgen ervoor dat het daglicht je hier letterlijk tegemoetkomt.
Zie je jezelf al zitten met een kop koffie of je laptop, terwijl de kinderen aan tafel spelen of huiswerk maken? Genieten!
Verspreid over de 3 overige bouwlagen bevinden zich nu 2 woonkamers, een slaapverdieping met grote slaapkamers, de badkamer en een afzonderlijke wasmachineruimte. Ook zijn er 2 dakterrassen zowel aan de voor- als aan de achterzijde van het huis.

Over de afwerking kunnen we kort zijn: modern en fris!

Sinds 2012 is de woning stap voor stap vergroot en verbeterd en zijn o.a.:

- De vide dichtgemaakt door ‘beloopbaar glas’ te verwerken in de 1e verdiepingsvloer
- De opbouw gerealiseerd in 2017 (waardoor een 4e woonlaag is ontstaan mét een extra dakterras)
- Een afzonderlijke fietsenstalling gebouwd met privé plaatsen voor 2 fietsen
- De privé parkeerplaats voorzien van een 220 volt wcd, geschikt voor het laden van een plug-in Hybride voertuig
- De 1e, 2e, en 3e verdieping voorzien van elektrisch bedienbare zonweringen

Daarnaast zijn keuken(s), toilet en badkamer modern en strak afgewerkt.

Comfort en duurzaamheid.

- Energiezuinig: energielabel A(!)
- Volledig voorzien van dubbel glas, de 2 ramen op de begane grond zelfs van HR+++ glas
- Vloer-, spouw- én dakisolatie
- Airconditioning op de 2e en 3e verdieping (koelen én verwarmen)
- 12 zonnepanelen (2019) en een verwarmingsketel van 2020
- 2x een 80 liter boiler voor warmwater en een warmwaterboiler in de keuken op de begane grond
- Naast de keuken op de begane grond zijn de 1e en de 3e verdieping voorzien van een pantry

Hier woon je het hele jaar door comfortabel.

Parkeren en fietsenstalling.

Achter de woning is een groot parkeerterrein met aansluitend aan de woning een in eigendom zijnde privé parkeerplaats. Het parkeerterrein is toegankelijk via een slagboom en in de avond, nacht en weekenden afgesloten door middel van een toegangshek. De parkeerplaats is voor de bewoners altijd toegankelijk met een bads.

Met 8 bewoners gezamenlijk is er in 2018 een fietsenstalling gecreëerd. Hierin is ruimte voor het stallen van 2 fietsen waardoor de voormalige inpandige berging nu volledig benut kan worden voor het woongenot. Wel zo prettig!

Locatie met uitzicht en privacy.

Aansluitend aan de woonkamer op de 1e woonlaag bevindt zich een royaal dakterras. Met afmetingen van 4.4 x 4 meter en een ligging op het zuidoosten is het hier ’s ochtends en ’s middags heerlijk toeven. Op de 4e woonlaag is een dakopbouw gerealiseerd met een extra balkon van 5.1 x 1.8 meter. Vanaf dit terras is er een prachtig uitzicht richting -en over- het Wolderwijd. Met een ligging op het westen is dit juist een heerlijke plek om te genieten van de middag- en avondzon.

Een A-locatie met de voordelen van de stad om de hoek. Maar ook; basisscholen en het NS-station: allemaal op loop- of fietsafstand. En binnen een paar minuten rij je de A28 op. Ideaal!

Eerlijk is eerlijk: dit huis moet je zelf ‘even voelen’.

Een bezichtiging geeft pas écht een beeld van de ruimten, het licht en de fijne sfeer.

Zie jij jezelf hier al wonen?

Bel ons voor een vrijblijvende rondleiding – wij laten je graag ervaren wat deze woning zo bijzonder maakt.

Indeling

Begane grond:

Entree, hal met modern toilet met fonteintje, gezellige eetkamer met kastenwand en trapopgang, woonkeuken met inbouwapparatuur, achtergelegen (voormalige fietsen)berging (thans met douchecabine en wastafel) met toegang tot de privé parkeerplaats direct achter het huis

Eerste verdieping:

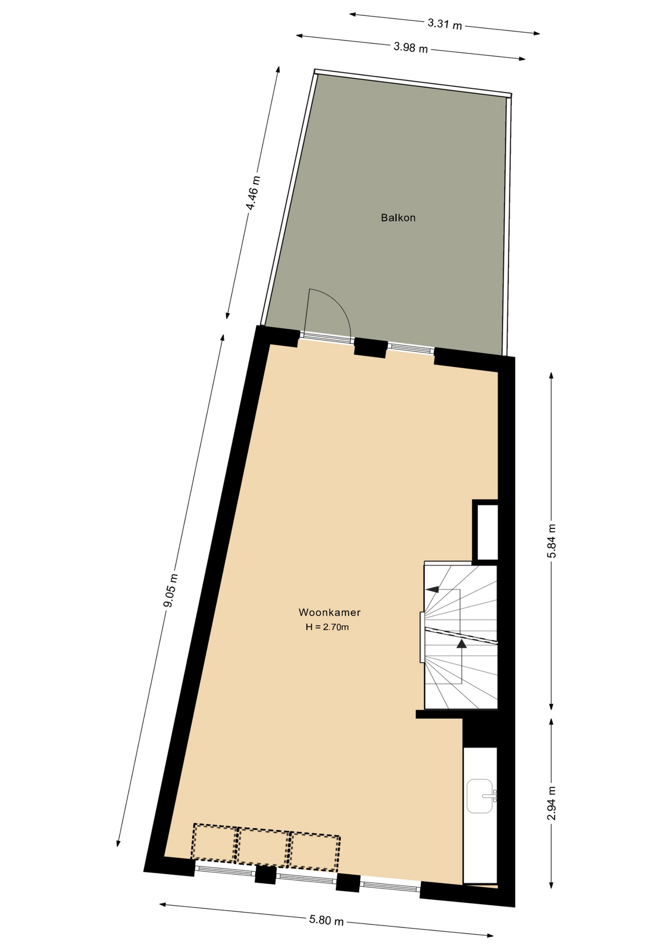
Schitterend ruime woonkamer met eigen pantry en openslaande deuren naar het dakterras aan de achterzijde van de woning, trapopgang

Tweede verdieping:

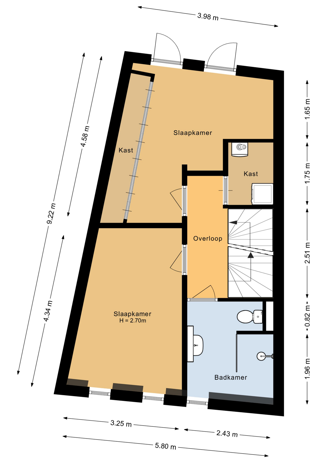
Overloop met praktische kast voor de verwarmingsketel, wasmachine en droogtrommel, 2 forse slaapkamers (voorheen 3, het terugbrengen naar de oorspronkelijke situatie is eenvoudig) waarvan 1 met airconditioning, fris afgewerkte badkamer met inloopdouche, 2e toilet en wastafel, trapopgang

Derde verdieping:

Met een schuifdeur af te sluiten lichte en ruime woon-, werk-, hobby- of slaapkamer met eigen pantry en aansluitend het balkonterras aan de voorzijde van de woning

Overdracht

  • Vraagprijs€ 695.000,- k.k.
  • StatusBeschikbaar
  • AanvaardingIn overleg

Bouw

  • SoortHerenhuis
  • BouwvormBestaande bouw
  • Bouwjaar2004
  • Dak typePlat dak

Oppervlakten en inhoud

  • Wonen177 m2
  • Overige inpandige ruimte0 m2
  • Gebouwgebonden buitenruimte26 m2
  • Perceel103 m2
  • Inhoud665 m3

Indeling

  • Aantal kamers7
  • Aantal badkamers1
  • Aantal slaapkamers3
  • VoorzieningenMechanische ventilatie, Buitenzonwering, Airconditioning, Frans balkon, Dakraam, Glasvezel kabel, Zonnepanelen

Energie

  • EnergieklasseA
  • IsolatievormenVolledig geïsoleerd
  • Soorten verwarmingCV ketel
  • Soorten warm waterElektrische boiler eigendom
  • CV ketel typeAtag

Buitenruimte

  • LiggingenIn centrum, Beschutte ligging
  • TuintypenVoortuin, Zonneterras
  • HoofdtuinZonneterras
  • Hoofdtuin opp.18 m2
  • Hoofdtuin positieZuidoost
  • AchteromJa

Bergruimte

  • SoortInpandig
  • VoorzieningenVoorzien van verwarming, Voorzien van elektra, Voorzien van water

Parkeergelegenheid

  • Parkeer faciliteitenOp eigen terrein

Kadastrale gegevens

  • GemeenteHarderwijk
  • Perceel9967
  • Oppervlakte103 m2
  • EigendomssituatieVolle eigendom

Interesse gewekt?

Aarzel niet en neem contact met ons op, wij helpen jou graag!

Go to Top