Fagotdreef 10

3845 DH Harderwijk

Vraagprijs € 435.000,- k.k.
97 m2 wonen
126 m2 perceel
3 slaapkamers
Verkocht o.v.

Op zoek naar een LEVENSLOOPBESTENDIGE woning of heb je juist liever een grote WOONKEUKEN en alle slaapkamers ‘boven’?

Aan u of jou de keus!

Het kan namelijk allebei in deze fris afgewerkte tussenwoning (Energielabel A+!) met tuin(tje), gelegen op een rustige plek in de populaire woonwijk Drielanden.

Het huis is in 1999 gebouwd als zijnde een ‘seniorenwoning’ met een slaap- en een badkamer op de begane grond.

Bij een verbouwing in het verleden is de slaapkamer op de begane grond bij de keuken betrokken. Daardoor is nu een forse woonkeuken waar een grote eethoek zeker niet misstaat. Omdat de eethoek nu niet meer in de woonkamer hoeft te staan is ook de zithoek lekker ruim van afmetingen.

Maar het is vrij eenvoudig om de oorspronkelijke situatie terug te brengen. Op die manier ontstaat er weer een levensloopbestendige woning waarbij het woonprogramma van slapen en baden zich op de begane grond afspeelt.

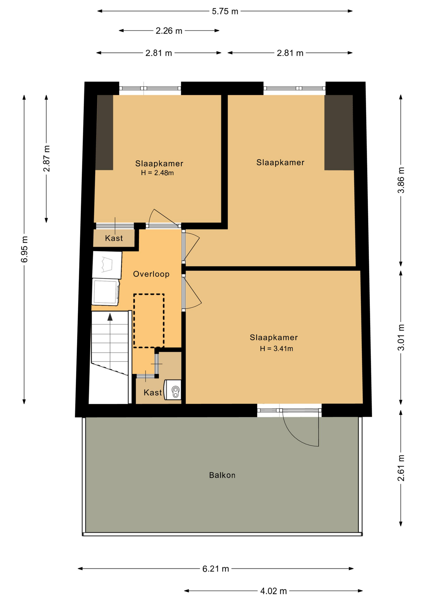
Op de 1e verdieping is een brede dakkapel geplaatst waardoor er boven 3 goede slaapkamers zijn.

Mogelijkheden té over dus én voor meerdere doeleinden geschikt!

De achtertuin ligt op het westen, is helemaal bestraat en dus onderhoudsarm aangelegd.

Bij de bouw zijn vloer-, spouw- en het dak geïsoleerd en het hele huis heeft dubbel glas.

Voor de verwarming zijn radiatoren aanwezig die allemaal beschikken over een eigen thermostatische kraan. Dit systeem wordt aangestuurd door de mini-warmtekrachtinstallatie (collectieve stadsverwarming). De warmwatervoorziening wordt geregeld door een elektrische zonneboiler van 150 liter – Met al deze voorzieningen is het mooie Energielabel A+ dan ook begrijpelijk.

De woning staat op een perceel grond van 126 m² en heeft een woonoppervlak van circa 97 m².

De centrale ligging is ook een pluspunt. Op een paar minuten loopafstand ligt het winkelcentrum van Drielanden met een grote diversiteit aan winkels. Maar ook basisscholen, het wandel- en doe park Cresent en de uitvalswegen zijn allemaal op korte afstand gelegen.

Door de diverse mogelijkheden, de frisse afwerking en de rustige en centrale ligging is dit met recht een huis om in ‘thuis’ te komen!

Kom, kijk en bewonder…

Indeling:

Begane grond:

entree, meterkast, toilet, trapopgang, badkamer met ligbad, douche en wastafelmeubel, mooi royale en licht afgewerkte woonkamer, keuken met inbouwapparatuur en aansluitend een grote eetkamer

1e etage:

overloop met wasmachine- en drogeraansluiting, 3 goede slaapkamers waarvan 2 met dakkapel en 1 met toegang tot het dakterras

2e etage:

bergvliering bereikbaar met een vlizotrap

Overdracht

  • Vraagprijs€ 435.000,- k.k.
  • StatusVerkocht o.v.
  • AanvaardingIn overleg

Bouw

  • SoortEengezinswoning
  • BouwvormBestaande bouw
  • Bouwjaar1999
  • Dak typeLessenaardak

Oppervlakten en inhoud

  • Wonen97 m2
  • Overige inpandige ruimte0 m2
  • Gebouwgebonden buitenruimte18 m2
  • Perceel126 m2
  • Inhoud338 m3

Indeling

  • Aantal kamers5
  • Aantal badkamers1
  • Aantal slaapkamers3
  • VoorzieningenMechanische ventilatie, Buitenzonwering, Glasvezel kabel

Energie

  • EnergieklasseA+
  • IsolatievormenDakisolatie, Muurisolatie, Vloerisolatie, Dubbelglas
  • Soorten verwarmingStadsverwarming
  • Soorten warm waterZonneboiler

Buitenruimte

  • LiggingenAan rustige weg, In woonwijk, Beschutte ligging
  • TuintypenAchtertuin, Voortuin
  • HoofdtuinAchtertuin
  • Hoofdtuin opp.27 m2
  • Hoofdtuin positieWest
  • AchteromJa

Bergruimte

  • SoortVrijstaand hout
  • VoorzieningenVoorzien van elektra

Parkeergelegenheid

  • Parkeer faciliteitenOpenbaar parkeren

Kadastrale gegevens

  • GemeenteHarderwijk
  • Perceel5003
  • Oppervlakte126 m2
  • EigendomssituatieVolle eigendom

Interesse gewekt?

Aarzel niet en neem contact met ons op, wij helpen jou graag!

Go to Top