Cort van der Lindenlaan 15
3843 VK Harderwijk
Deze uitgebouwde tussenwoning met stenen schuur, voor- en achtertuin ligt op een hele leuke en rustige plek aan de Cort van der Lindenlaan. Een autoluwe en rustige straat waar het heerlijk wonen is.
De ligging in de wijk De Wittenhagen betekent dat je binnen enkele minuten bij het wijk-winkelcentrum staat en dat er diverse (basis en VO)scholen in de directe omgeving te vinden zijn. En met de auto bereik je binnen no-time de op- en de afrit van de snelweg A28.
De woning is oorspronkelijk gebouwd in 1961 maar in 2005 is de keuken aan de achterzijde uitgebouwd. Vervolgens is er in 2007 een vaste trap naar de 2e verdieping gemaakt en is deze zolder voorzien van een nok verhogende dakkapel. Nu is er dan ook een royale L-vormige woonkamer op de begane grond en zijn er 4 slaapkamers te vinden op de verdiepingen.
In totaal biedt dit huis 104 m² aan woonoppervlak waardoor er een heerlijke leefruimte is voor een (toekomstig) gezin!
Los van alle bovenstaande verbouwingen is men op de 1e etage ook ‘slim’ bezig geweest waardoor ook hier alle ruimten optimaal benut zijn.
Zo is de voormalige douchecel vergroot. Daardoor is er nu naast voldoende doucheruimte, ook plek ontstaan voor een dubbele wastafel in meubel én een 2e toilet. En hoe fijn is dat laatste op de slaapverdieping…
Achter de uitbouw van de keuken is een nieuwe schuur (in spouw) gebouwd. De achtertuin is daardoor niet bijster groot meer maar er is voldoende ruimte over om rustig en beschut buiten te kunnen zitten. Door de ligging op het noord-oosten is dit bij de warmere dagen van het jaar een heerlijke plek die de nodige verkoeling met zich meebrengt. Daarentegen ligt de voortuin dus op het zonnige zuid-westen. En qua afmetingen is hier volop gelegenheid voor een heerlijk terras in de zon!
De woning staat op een perceel van 159 m². De vloer, de spouw en het dak zijn grotendeels geïsoleerd en op 2 kleine raampjes na beschikt het hele huis over dubbel glas (met grotendeels hardhouten kozijnen). Aan de woning ‘hangt’ dan ook een energielabel C.
Wanneer je dus op zoek bent naar een enigszins ‘betaalbaar’ en compleet huis dan ben je mogelijk aan de Cort van der Lindenlaan 15 op het juiste adres!
Bel ons gerust voor een vrijblijvende rondleiding. Gaan we samen kijken of dit huis jouw nieuwe ‘thuis’ kan worden.
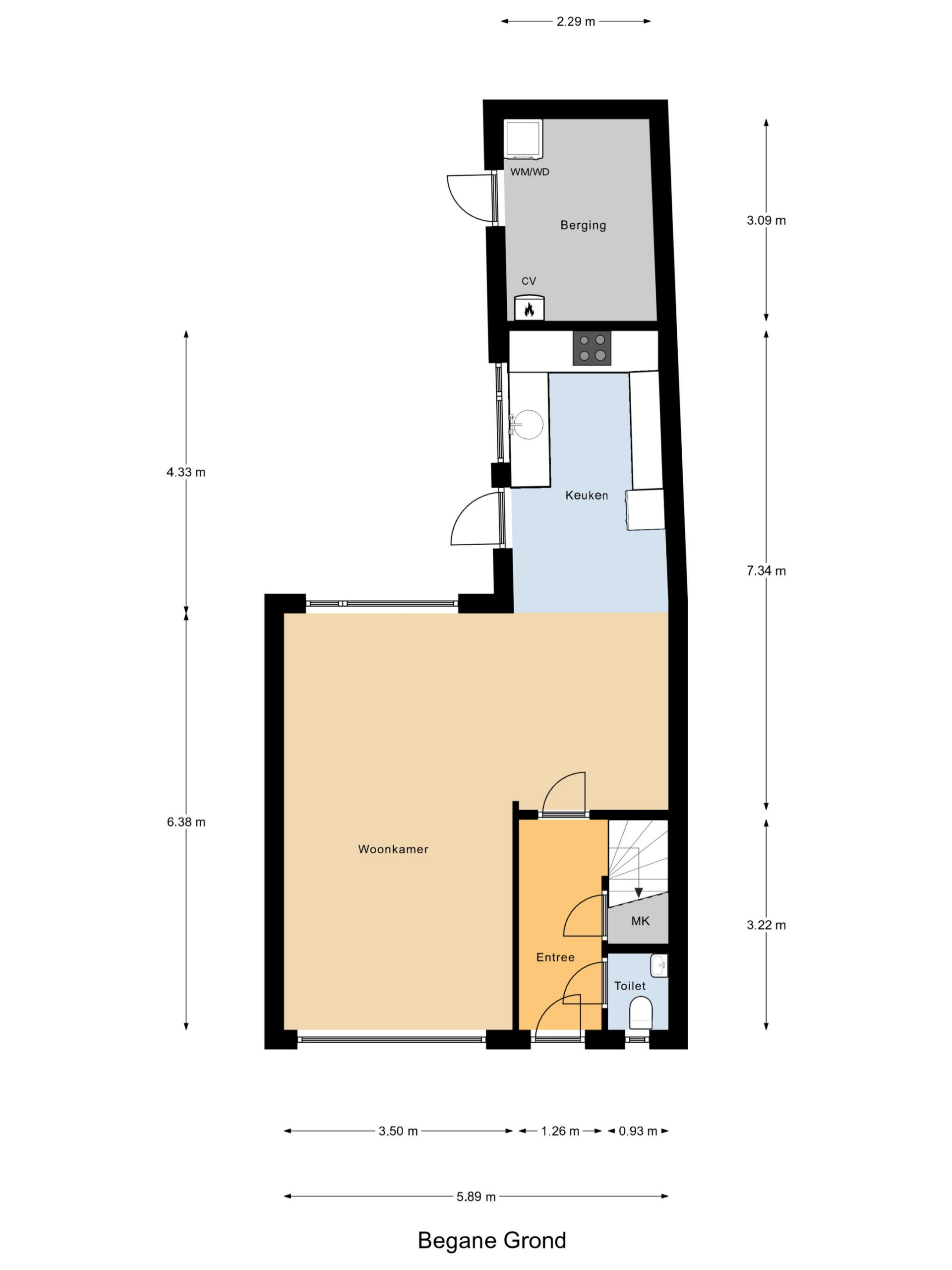
Indeling:
Begane grond:
entree, toilet met fonteintje, trapkast, trapopgang, L-vormige woonkamer, uitgebouwde keuken (deels van 1998 en uitgebreid in 2006) met toegang tot de achtertuin
1e etage:
overloop, 3 slaapkamers waarvan 1 met inbouwkast, badkamer met douchegelegenheid, dubbele wastafel in meubel en 2e toilet
2e etage:
via vaste trap te bereiken voorzolder met bergruimte, 4e slaapkamer met eveneens bergruimte
Overdracht
- Vraagprijs€ 365.000,- k.k.
- StatusVerkocht
- AanvaardingIn overleg
Bouw
- SoortEengezinswoning
- BouwvormBestaande bouw
- Bouwjaar1961
- Dak typeZadeldak
Oppervlakten en inhoud
- Wonen104 m2
- Overige inpandige ruimte7 m2
- Gebouwgebonden buitenruimte0 m2
- Perceel159 m2
- Inhoud386 m3
Indeling
- Aantal kamers5
- Aantal badkamers1
- Aantal slaapkamers4
- VoorzieningenMechanische ventilatie, Buitenzonwering
Energie
- EnergieklasseC
- IsolatievormenDakisolatie, Muurisolatie, Vloerisolatie, Grotendeels dubbelglas
- Soorten verwarmingCV ketel
- Soorten warm waterCV ketel
- CV ketel typeNefit
Buitenruimte
- TuintypenAchtertuin, Voortuin
- HoofdtuinVoortuin
- Hoofdtuin opp.49 m2
- Hoofdtuin positieZuidwest
- AchteromNee
Bergruimte
- SoortAangebouwd steen
- VoorzieningenVoorzien van elektra, Voorzien van water
- IsolatievormenDakisolatie
Parkeergelegenheid
- Parkeer faciliteitenOpenbaar parkeren
Kadastrale gegevens
- GemeenteHarderwijk
- Perceel4958
- Oppervlakte159 m2
- EigendomssituatieVolle eigendom